Vendita Villa vista mare, con Pajara, a Pescoluse - Salve

Villa vista mare, con Pajara, a Pescoluse

SP 339 Salve
foto immobile Villa vista mare, con Pajara, a Pescoluse n. 9

L'Immobile in Breve

Cod. 659
Città:
Salve
Località:
Pescoluse
Prezzo:
€ 320.000
Condizioni:
Nuovo
Superficie Coperta:
118 m2
Superficie Giardino:
5.700 m2
N. Locali:
5
N. Camere da Letto:
3
Posti Letto:
6
N. Bagni:
2

Condividi la Scheda

Condividi su Facebook Condividi su Twitter Condividi su LinkedIn Condividi tramite Email Pinterest Condividi su ok.ru
https://www.damicoimmobiliare.it:443/immobili/659/salve/villa-vista-mare-con-pajara-a-pescoluse/

Accessori

Acquedotto Pubblico Acquedotto Pubblico
Wi-Fi Wi-Fi
Barbecue Barbecue
Vista Mare Vista Mare
Piscina Piscina
Terrazzo Terrazzo
Balcone Balcone
Arredamento Arredamento
Climatizzatore Climatizzatore
Riscaldamento Autonomo Riscaldamento Autonomo
Posto Auto Posto Auto
Giardino Giardino

Descrizione

Pescoluse, Salve, Salento, Puglia

D’Amico Immobiliare ti propone in vendita questa Villa vista mare di 118mq, disposta su 2 livelli, con splendida vista mare panoramica. La Villa è inserita all’interno di un giardino mediterraneo di 5.700 mq, ricco di i ulivi, alberi da frutto e un’antica pajara perfettamente conservata. Possibilità di piscina.

La villa

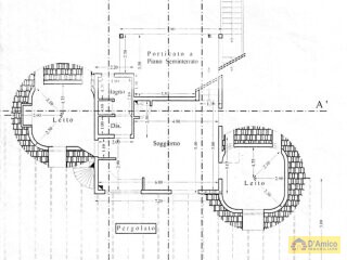
Dal tipico carattere rurale salentino, la Villa si dispone tra piano terra e primo piano.

Dal piano terra, grazie all’ampio porticato, è possibile ammirare la vista mare panoramica. Qui ti accoglie un ampio e luminoso Living, che ospita una graziosa Cucina in legno e muratura, ed un suggestivo camino a legna. Sullo stesso piano, si trovano un bagno completo di doccia e 2 raffinate Camere da letto matrimoniali.

Le scale interne ti consentono di raggiungere un’ulteriore Camera da letto matrimoniale, con bagno ensuite, posta al primo piano. Da questa camera puoi godere della splendida vista mare mozzafiato grazie, ad un pergolato ombreggiante.

Ogni ambiente della casa è curato nei minimi dettagli, e ti consente di respirare appieno la tradizione locale: dai porticati in legno ai muretti in pietra a secco, fino al rigoglioso giardino.

Tra ulivi secolari, fichi, corbezzoli, lentischi e piccole querce, puoi immergerti in un’oasi mediterranea senza paragoni, che ti conduce fino alla tipica pajara. Interamente in pietra a secco, la costruzione si presenta in perfetto stato di conservazione e ben si presta a diventare una piccola dependance, o cantina per i vini.

Nella parte retrostante è presente un porticato chiuso e adibito a deposito e garage per l'auto. 

Tutti gli ambienti sono serviti da impianto di climatizzazione con pompa di calore caldo/freddo. La proprietà, inoltre, è allacciata alla rete dell’acquedotto pubblico e dispone di una fossa imhoff.

La location

Questa tipica villa vista mare, con pajara, è in vendita a Pescoluse, nel Salento, in Puglia.

La villa si trova a soli 4 minuti dalla spiaggia di Pescoluse (3km), e a meno di 5 km dal centro abitato del Comune di Salve. 

La Marina di Pescoluse è rinomata negli ultimi anni come una delle località balneari più richiesta d’Italia, per le sue spiagge di sabbia dorata, le sue acque cristalline con fondali bassi, e la macchia mediterranea, spesso presente anche sulle dune costiere. Da diversi anni viene premiata con la BANDIERA BLU, come località con il mare più pulito d’Italia, e la BANDIERA VERDE, come località con le migliori spiagge e servizi, adatti a famiglie con bambini. 

Galleria Foto

Mappa

Richiedi Maggiori Informazioni

Compilate il seguente modulo per avere maggiori dettagli riguardanti l'immobile o per richiedere un appuntamento per visionarlo di persona.